· PIPING INGENIERIA P&M EQUIPOS INDUSTRIALES SpA ·
 
 
 
 
 
 
  
 
   » PLANTA QUIMICA STGO »»»»
    
 
 
  
 
OTROS PROYECTOS
 
 
      · PLANOS 2D AUTOCAD  
 
    · MODELAMIENTO 3D
     
 
 
 
  • P3qui01
  • P3qui02
  • P3qui03
  • P3qui04
  • P3qui05
  • P3qui06
  • P3qui07
  • P3qui08
  • P3qui09
  • P3qui10
javascript image slider by WOWSlider.com v9.0
 
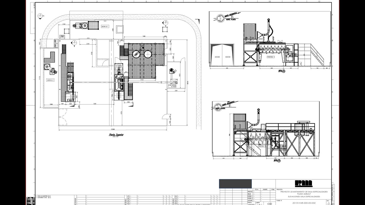
3.- PROYECTO PLANTA QUIMICA STGO

» Levantamiento en terreno de las instalaciones de la planta.
» Levantamiento de Equipos de Proceso.
» Levantamiento de todo el Piping asociado al traslado de materias
    primas hacia la planta de Producción.
» Confección de Planos 2D y Modelos 3D de las instalaciones.

» Duración del Proyecto: 8 meses aprox. 
» Año de ejecución del Proyecto: 2019

 

<<Anterior
 
 
INICIO-HOME
QUIENES SOMOS
PROYECTOS EJECUTADOS
FABRICACION Y MONTAJE
LEVANTAMIENTOS EN TERRENO
SERVICIOS
CONTACTENOS
Fono: +56 2 33460016 · Movil +56 9 88129695 · proyectos@piping-ingenieria.cl · www.piping-ingenieria.cl ·